產品概述/ zhongke
一、 產品概述
1、 輪胎式集裝箱門式起重機是集裝箱貨場進行堆碼作業的專用機械,廣泛應用于港口碼頭及集裝箱貨場。
2、 采用專用集裝箱吊具,可起吊20、40、45標準集裝箱及液壓儲存罐。
3、 大、小車運行機松采用三合一減速機,方便維護。
4、 輪胎可實現90。轉向,進行換場作業,同時具備20。或45。的斜行功能。
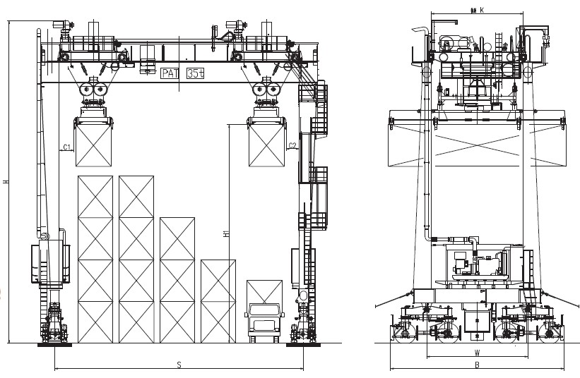
二、產品簡圖與技術規格(35t)



中科重工成功案例
注起重設備定制就解決方案提供商
起重設備定制解決方案提供商
注起重設備定制就解決方案提供商
全天候服務
現場安裝指導
免費技術培訓
終身維修服務
中科重工實力看得見
注起重設備定制就解決方案提供商
公司創建于2017年,注冊資金1.16億元,各廠區總計占地面積近50000㎡,現有員工200余人

公司配備現代化生產車間,年生產能力可達上萬臺
眾多實力客戶的選擇
注起重設備定制就解決方案提供商
推薦產品/ recommend
相關新聞/ Related news
返回頂部
在線客服
掃一掃 關注我們
掃一掃 關注我們